OUR PROJECTS:
47 Colindeep Lane
Part Single, Part two storey side and rear extension following demolition of existing shed
Part Single, Part two storey side and rear extension following demolition of existing shed. Alternation to existing roof to form hipped roof. New front hardstanding to provide off street parking, refuse and recycling store, cycle store. Installation of new electric gate and fence. Alternations to front access steps roof extension to create additional habitable space to include conversion of roof from hip to gable end to one side and to rear with new gable end windows and installation of 3x roof lights to front roof slope, internal changes at NW9.
Construction Technology
Innovative design:
From the outset, the CJ Blok® PK-25 ENERGO was developed to give designers, spec iffier and contractors real flexibility with outstanding all round performance. The system offers a range of unique benefits and meets all current and planned regulations and recommendations for sustainable building construction. Based upon interlocking modular units (with or without integral insulation). CJ Blok® PK-25 ENERGO walling units are dry stacked – without the need for a bed or mortar. The units are then in-filled with concrete to form a monolithic structural walling system. The external and internal faces are then completed with a finish applied directly to the wall surface.
Sustainablity – product and process.
CJ Blok® PK-25 ENERGO are committed to sustainability. As a result, they have a very low embodied energy manufacturing process that includes natural curing with no requirement for ovens or kilns, and harvested rain water for the manufacturing process.
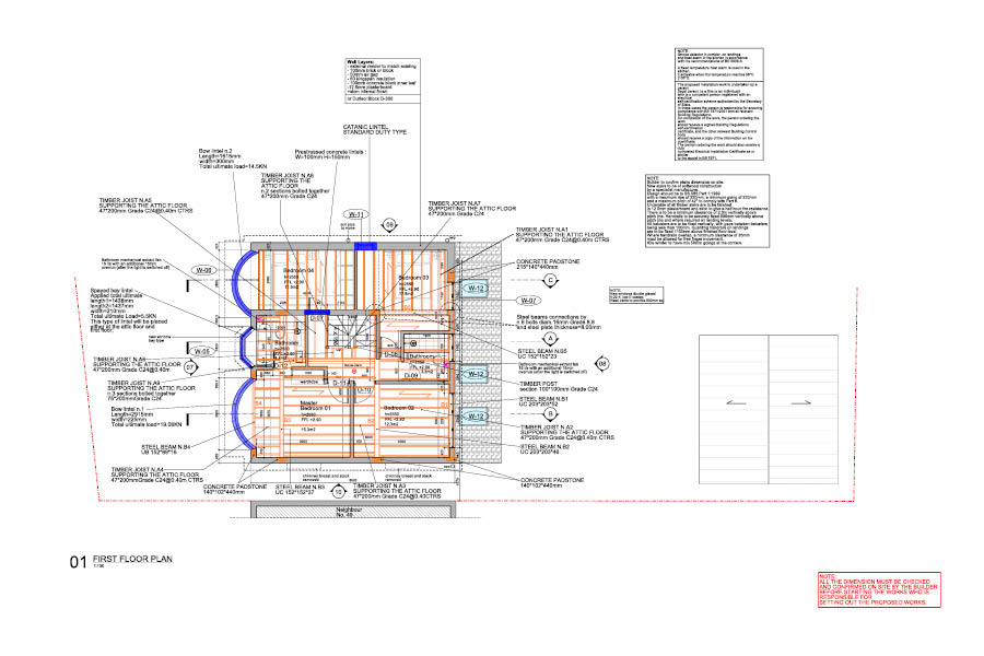
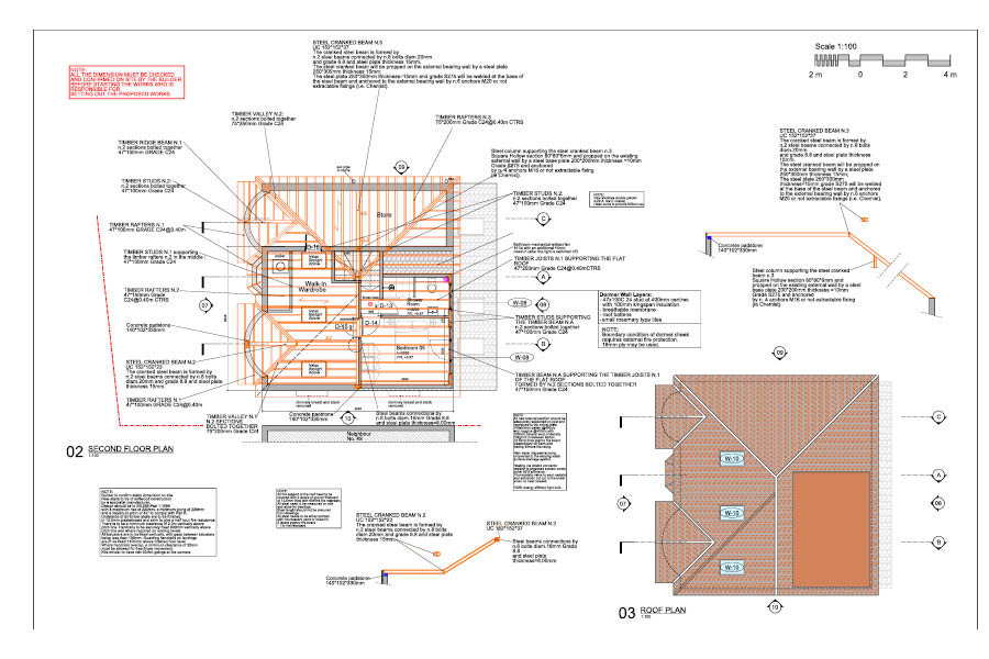
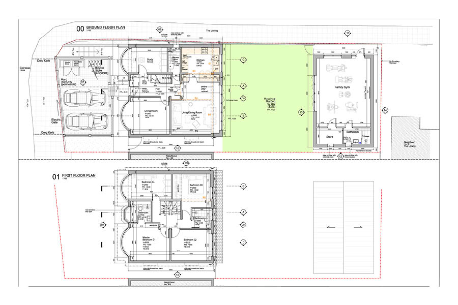
Floor Plans
To find out how we can help you enhance the value of your property with Innovative Properties? Click the button below and contact us using one of the options.




